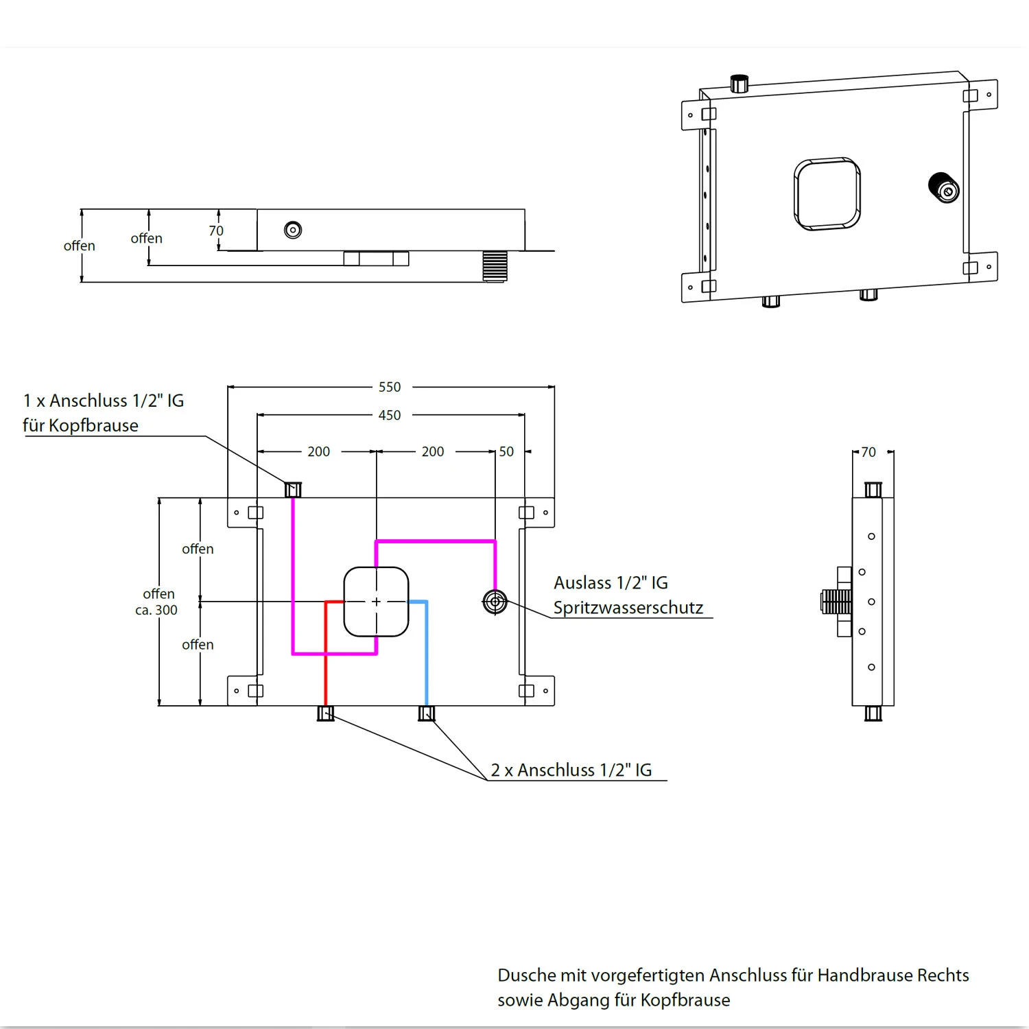
Kronenbach Quick-Box Paneel für Dusche mit Auslass für Kopf- und Handbrause
- mit Auslass für Kopf- und Handbrause
- inkl. Universal-Grundkörper und Paneel
- Einbaumaße: Breite 45 cm, Höhe 35 cm
- 1x 1/2″ IG Anschluss für Kopfbrause (oben)
- 1x 1/2″ IG Anschluss für Wandanschlussbogen (rechts)
- 2x 1/2″ IG Anschluss für Wasserzulauf (Warmwasser links, Kaltwasser rechts)
- ideal für die Verwendung mit allen handelsüblichen Rohrsystemen
Vorteile:
- schnelle und einfache Montage
- durch die seitlichen Befestigungsschienen kann die QUICK BOX in unterschiedlichsten Anwendungsbereichen (Trockenbau, Massivbau, Vorwand) eingebaut werden
- So sparen Sie bis zu 70 % der Montagezeit
- ein kompaktes System
- der Einsatz eines vorgefertigten Paneels erspart das lästige Suchen, Einrichten und Zusammenbauen von einzelnen Elementen
- dadurch wird die Material- und Arbeitszeitkalkulation genauer und verlässlicher
- 100 % dicht und maßgenau
- die Abstände zwischen KRONBOX und Auslässen sind maßgenau
- alle Verbindungen im Paneel sind 100 % dicht
- optimale Abdichtung gegen Spritzwasser
- sowohl die KRONBOX als auch der Handbrauseauslass können mithilfe einer Dichtmanschette in den Dichtanstrich des Fliesenlegers eingebunden werden
- perfekte Wärmedämmung
- das Paneel besteht aus XPS-Styrodur® und zeichnet sich durch hervorragende Dämmeigenschaften, hohe Druckfestigkeit und geringe Wasseraufnahme aus


















Rezensionen
Es gibt noch keine Rezensionen.